Lofts

“What’s in a name?” (W. Shakespeare)

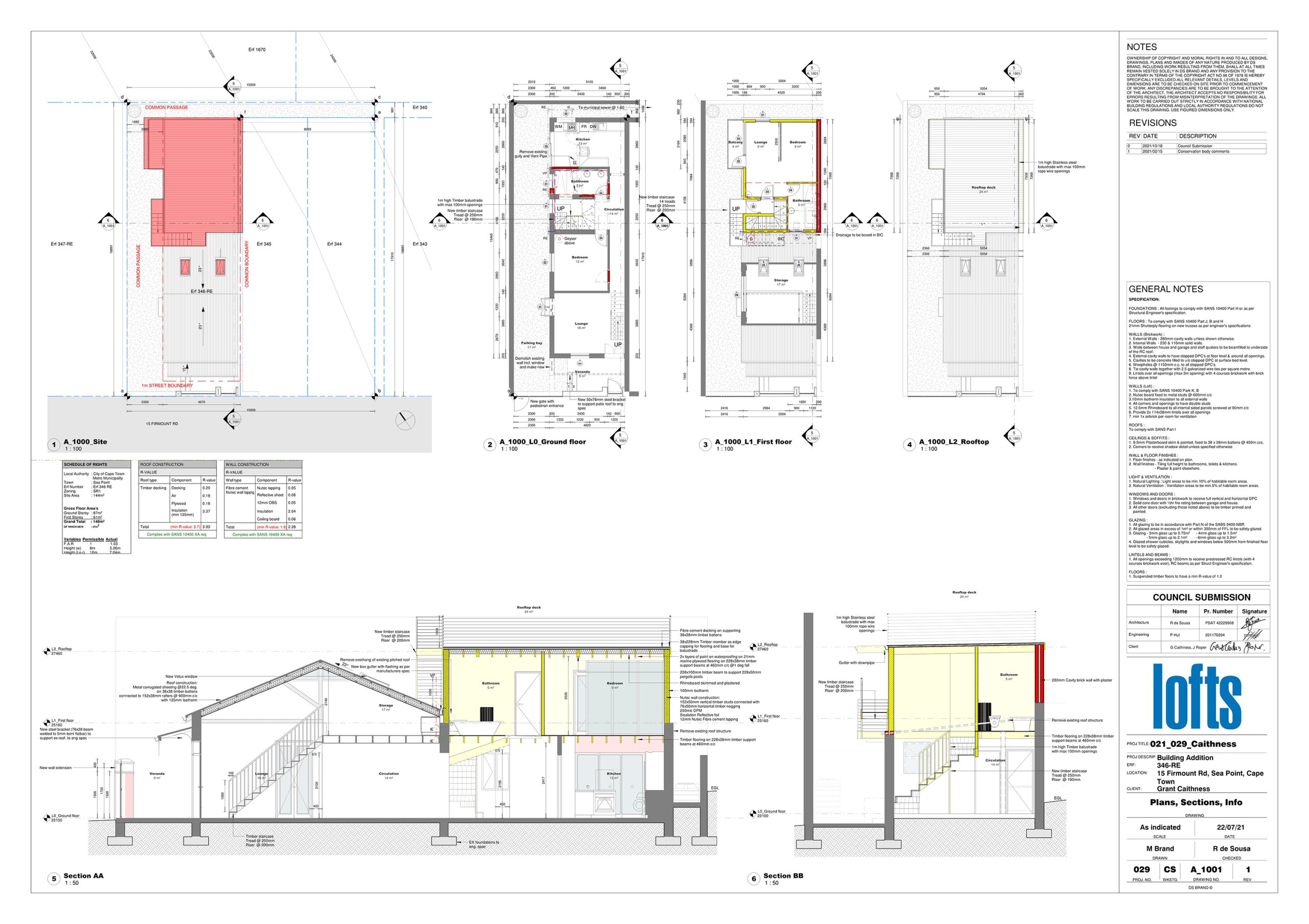
The sole purpose of existence for this construction company as a spatial optimization within existing buildings: LOFTS.

Our involvement including multiple stages of approval in and around the City of Cape Town municipality. From Heritage requirements to Land Use applications and Local Authority approval. We run the process and get the results.